faq_top_bild

Image
Mjöbäcksvillan First Choice 2.0 Classic

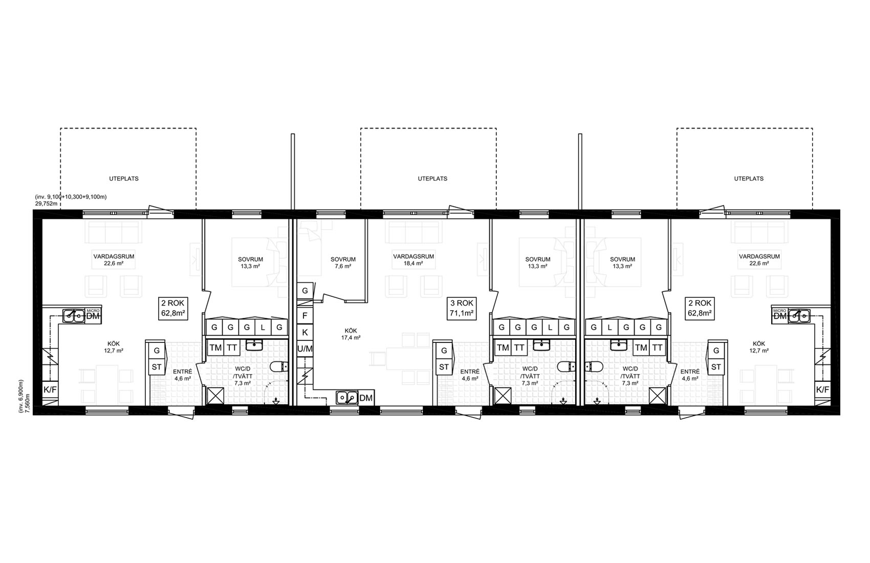
Kombo länga.
2 + 3 + 2 rum & kök.

Denna Kombo länga består av tre bostäder fördelade på 2 stycken 2-rumslägenheter på 62,8 kvm samt 1 st 3-rumslägenhet på 71,1 kvm.

HUSMODELL Kombo
HUSTYP 1-plan Länga
ANTAL RUM 2 + 3 + 2 ROK
BOAREA 196,7 m2
BYGGNADSAREA 225 m2
BRUTTOAREA 225 m2
TAKVINKEL 27°
BYGGNADSHÖJD 3130 mm

Planlösning